Приміщення і Споруди в Харкові
Наша компания продаёт своё помещение ( под офис, склад, магазин ) находящееся по адресу: г.Харьков, ул.Социалистическая, (Ленинский район).
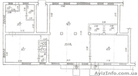
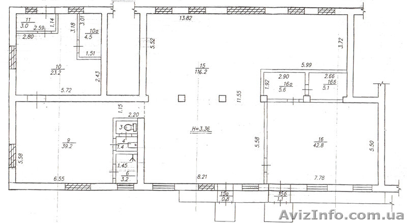
Нежилой фонд, первый этаж в жилом кирпичном доме 1952 года постройки, общая площадь 247, 3 кв.метров, высота потолка 3, 36 метра, большая стоянка перед входом для легковых и грузовых автомобилей, отдельные два входа и дополнительный пожарный выход, который можно использовать для погрузки-выгрузки товара.
Помещение ухоженное и хорошо вентилируемое . 4 офисные комнаты, 3 склада, санузлы, электрощитовая (водопровод, канализация, отопление – централизованное). Помещение можно использовать под офис или магазин-склад, есть напряжения 380В 3-и фазы, есть возможность подвести несколько линий телефонов, есть место под организацию мощной вентиляционной системы.
В соседнем здании расположен центральный пульт УГСО.
Прекрасное место возле транспортных развязок: Киевская трасса, м.Холодная Гора, рядом Южный вокзал.
Все необходимые документы для продажи оформлены.
Дії з оголошенням #431072
Поділіться з друзями і знайомими
Поділіться оголошенням Продам помещение 247 кв.м в г.Харькове з друзями, знайомими, потенційними клієнтами, використовуйте для цього соціальні мережі, месенджери. Це додасть оголошенню популярності і ефект багаторазово підвищиться.
Збережіть або повідомте про порушення
Сабадаш Виктория
- На сайті з: 07.11.2011
- Активність: 07.11.2011
Поради з безпеки
- Познайомтеся з продавцем в публічному місці
- Перевірте товар перед покупкою
- Сплачуйте лише після того як переконаєтеся, що товар відповідає опису і вашим вимогам
- Бажано провести операцію при свідках
QR-код сторінки
Поділіться QR-кодом в соціальних мережах, чатах, месенджерах щоб ваші знайомі, потенційні клієнти відкрили ваше оголошення на своїх смартфонах.
Казахстан
Україна
Узбекистан
Молдова