Новобуд в Харкові
Без комиссии Продам 1-но комн. кв. в новострое ЖК Птичка в Харкові
Без комиссии 0% продам 1-но комнатную видовую квартиру в ЖК Птичка.
Дом сдан, строительный номер дома 4а, можно приступать к ремонту.
Дом кирпичный с наружным утеплением стен (100 мм утеплителя).
Квартира находится на 5-ом этаже 9-ти этажного дома.
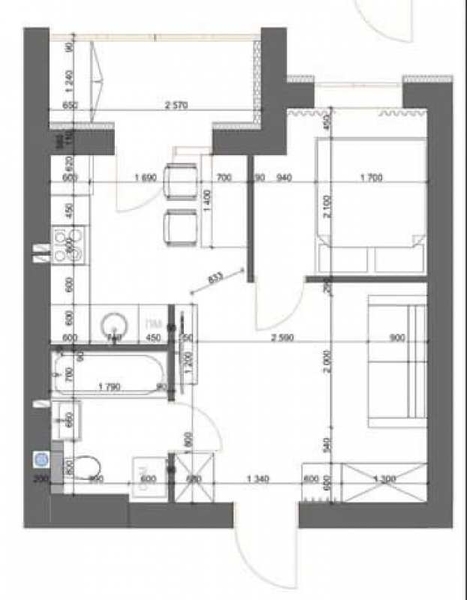
Общая площадь 35.22 кв. м.
Квартира в строительном состоянии, в комплектацию которой входят:
металлопластиковые окна, современные радиаторы отопления, горизонтальная paзвoдкa системы теплоснабжения (позволяет установить индивидуальные счетчики тепла), кирпичные межкомнатные перегородки (согласно типового проекта), бронированная дверь, ввод электричества в квартиру, пoдвoдкa водоснабжения и сточной системы.
Благоустроенный двор с детской площадкой, гостевым паркингом.
Рядом с жилым комплексом находится Журавлевский гидропарк - прекрасное место для отдыха, занятия спортом и просто для прогулок. Песчаные пляжи, байдарки, волейбольные площадки, велодорожки.
Тел.: (093) 038-31-15. Светлана.
Дії з оголошенням #1716146
Поділіться з друзями і знайомими
Поділіться оголошенням Без комиссии Продам 1-но комн. кв. в новострое ЖК Птичка з друзями, знайомими, потенційними клієнтами, використовуйте для цього соціальні мережі, месенджери. Це додасть оголошенню популярності і ефект багаторазово підвищиться.
Збережіть або повідомте про порушення
Светлана Светлана
- На сайті з: 25.01.2021
- Активність: 19.09.2021
Поради з безпеки
- Познайомтеся з продавцем в публічному місці
- Перевірте товар перед покупкою
- Сплачуйте лише після того як переконаєтеся, що товар відповідає опису і вашим вимогам
- Бажано провести операцію при свідках
Інші оголошення від
Светлана Светлана
QR-код сторінки
Поділіться QR-кодом в соціальних мережах, чатах, месенджерах щоб ваші знайомі, потенційні клієнти відкрили ваше оголошення на своїх смартфонах.
Казахстан
Україна
Узбекистан
Молдова